Контакты

Коммерческая недвижимость в Украине: купить или продать

Коммерческая недвижимость в ЖК "Французский Квартал"

Инвестиции в коммерческую недвижимость ЖК "Французский Квартал", г. Киев

Расположение
вулиця Анрі Барбюса, 51/2, Київ, Украина

ID: 12368

29.12.16

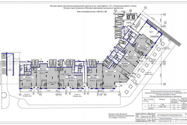
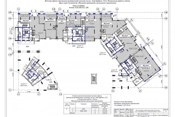
Тип недвижимости: коммерческая недвижимость 1-2 этажа жилого комплекса "Французский Квартал"
Объект введён в эксплуатацию
Доступные площади: от 145 кв.м. - 500 кв.м.
Состояние недвижимости: после строителей без отделки
Коммуникации: все необходимые городские
Электричество: 0,15 кВт на 1 кв.м.
Высота потолков: 4-5 метра
Стоимость за м/кв: $2 000 - $3 500
Структура сделки: переуступка инвестиционного договора

Коммерческая недвижимость в Украине - инвестиции в коммерческую недвижимость на портале InVenture

Инвестиционная привлекательность

  • Объекты недвижимости расположены во 2, 3, 4, 5-й очередях ЖК
  • Фасады помещений выходят на ул. Барбюса, Ковпака, Филатова
  • Рядом расположены: Укрзализныця, Прокуратура Киева, супермаркет Сильпо, NOVUS (на этапе строительства), ТЦ Ocean Plaza, офисный центр, станция метро Лыбидская;
  • Так же рядом расположено большое количество новых жилых комплексов: ЖК Централ Парк 1-я и 2-я очередь, ЖК Французский Квартал 2, ЖК Бульвар Фонтанов 2-е очереди, ЖК Престиж Холл, ЖК Кардинал, ЖК Новопечерский двор и другие
  • Ожидаемый доход от сдачи в аренду - $20-25 за кв.м. (содействие в привлечении арендаторов)

Расположение

Контакты

Свяжитесь со мной!

Привлечение инвестиций, продажа бизнеса и коммерческой недвижимости в Украине